Budynek A • Parter • M1
M1 na Osiedlu Sadove — idealne dla rodzin
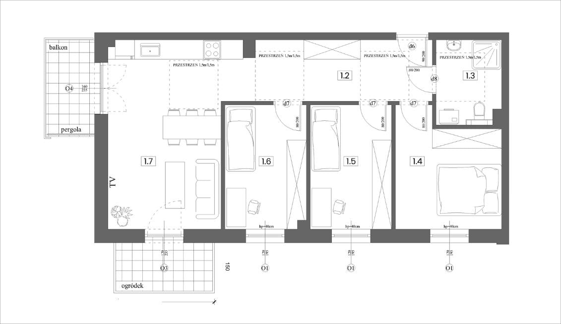
Powierzchnia całkowita: 68,87 m²
Przestronne i funkcjonalne mieszkanie zaprojektowane z myślą o rodzinach oraz parach ceniących komfort, nowoczesność i wygodę na co dzień. Funkcjonalny układ lokalu opiera się na przemyślanym rozkładzie pomieszczeń, który zapewnia wysoki komfort użytkowania bez strat powierzchni i daje szerokie możliwości aranżacyjne.
Sercem mieszkania jest przestronny salon z aneksem kuchennym (22,30 m²) — nowoczesna, otwarta strefa dzienna sprzyjająca wspólnemu spędzaniu czasu, wygodzie oraz doskonałemu doświetleniu wnętrza dzięki dużym przeszkleniom charakterystycznym dla inwestycji Sadove. Z salonu prowadzi wyjście na balkon / taras, który stanowi dodatkową przestrzeń do wypoczynku na świeżym powietrzu.
Układ mieszkania obejmuje trzy niezależne pokoje, które idealnie sprawdzą się jako sypialnie, pokoje dziecięce lub gabinet do pracy zdalnej. Przestronny przedpokój oraz komfortowa łazienka podnoszą funkcjonalność całego wnętrza i ułatwiają codzienne użytkowanie.
Rozkład pomieszczeń:
Mieszkanie znajduje się w nowym budownictwie, co oznacza wyższy standard techniczny, nowoczesne rozwiązania oraz niższe koszty eksploatacji. Dodatkowym atutem jest dobra ekspozycja i naturalne doświetlenie wszystkich pomieszczeń.
Istnieje również możliwość dokupienia dodatków, takich jak miejsce postojowe, garaż lub komórka lokatorska, co znacząco zwiększa funkcjonalność mieszkania i komfort codziennego życia.
Mieszkanie M1 to doskonały wybór dla osób, które szukają przestrzeni, nowoczesnej architektury i harmonii między funkcjonalnością a estetyką.
👉 Napisz do nas i sprawdź dostępność M1!
